Fucina Restaurant
This project has been designed to invent a spatial experience that mirrors the brief architecturally for this fine-dining Italian-cuisine restaurant in London.
The space is sculpted to stimulate, the forms are organic and the materials raw and refined. The ceiling is handmade ‘antico mattone’, formed and warped like the inside of a traditional pizza oven. This sets a visually dynamic atmosphere. Along with brick, marble and timber, burnt steel is dominant and relates back to the restaurant’s name ‘Fucina’, meaning Forge.
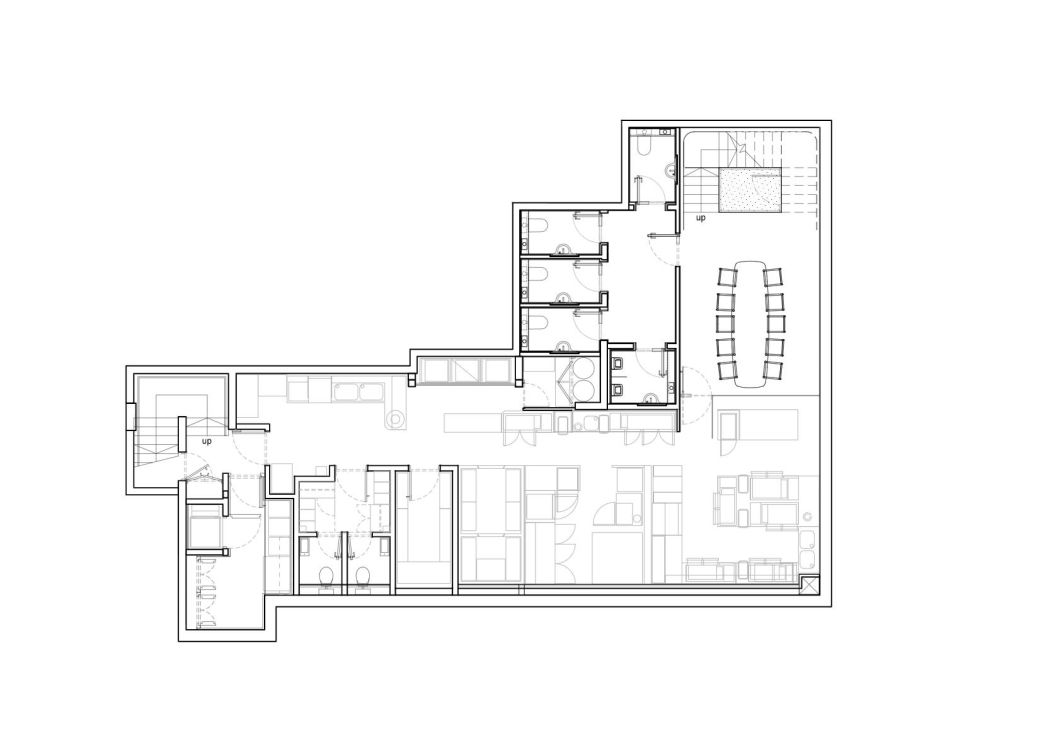
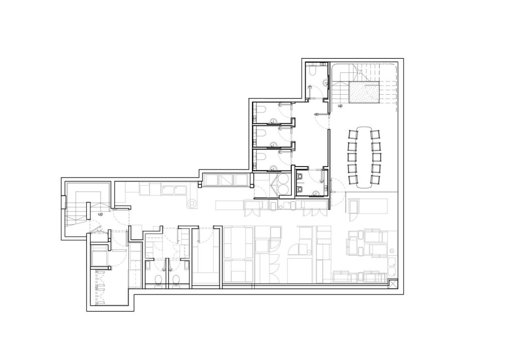
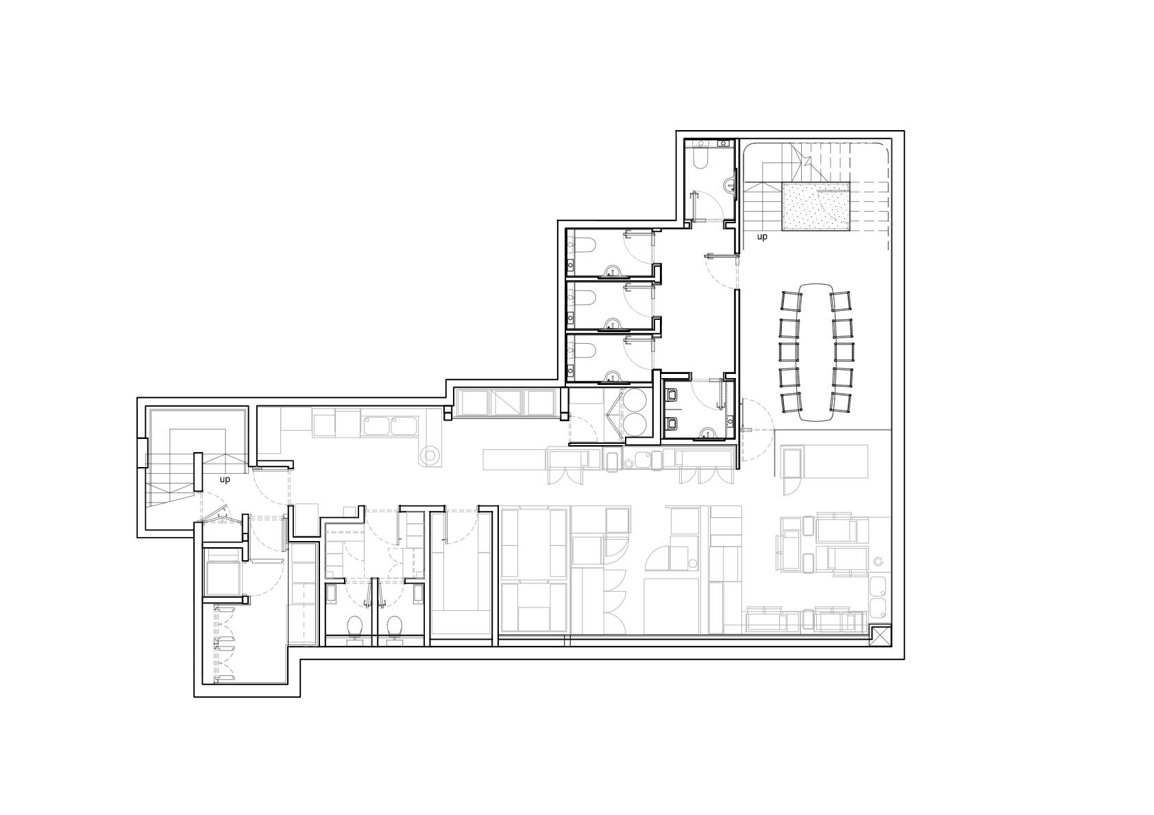
The restaurant is made up of 110 dining covers seated on low-backed bespoke banquettes and arm chairs on the ground floor served by a carved solid marble finishing kitchen.
Client: | Undisclosed |
Project Team / Credits: | Andy Martin Architecture (AMA) | Andy Martin |
Design Team: | Andreas Y. Kyriakou, Shawn Cooper, Mervyn Tasker, Fernado Herrera |
Type: | Commercial |
Location: | London, UK |
Budget: | £ 3,500,000 |
Date: | 2016 |
Status: | Completed |








