SMIK Residence
Situated on a half-corner plot in eastern Paphos, this residence is designed to strike a balance between geometry, functionality, and light. Three prismatic volumes intersect horizontally and vertically, creating a dynamic composition where voids and solids define circulation and the relationship between interior and exterior.
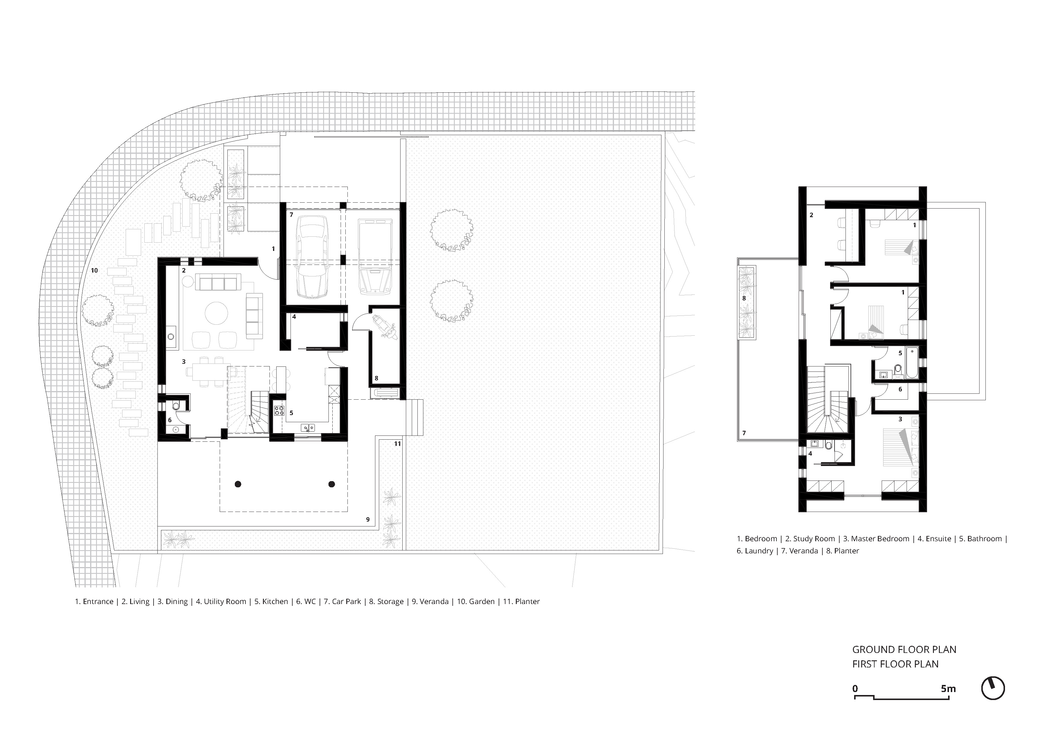
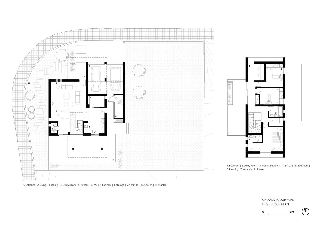
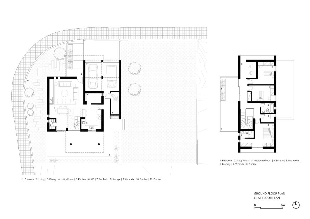
The ground-floor volume, aligned along the north-south axis, houses communal areas – living room, dining area, kitchen, and a utility room. Expansive glass surfaces to the south allow natural light to penetrate deeply, blurring indoor-outdoor boundaries while seamlessly connecting the space with the veranda and garden. This volume is organically linked to the covered parking area and storage room, enhancing functionality and usability.
In contrast, the elongated first-floor volume serves as a tranquil, protected retreat. Centrally positioned, it reinforces the building’s symmetry while offering privacy. This level accommodates three bedrooms, a shared bathroom, a laundry room, and an office space.
A sculptural curved metal staircase connects the two levels, introducing an organic element that contrasts with the strict geometry of the volumes, visually lightening the space.
The residence embodies a contemporary interpretation of Mediterranean architecture, utilizing regional materials in a refined manner. Kavala stone, solid wood, white plastered surfaces, and glass form a palette that harmonizes with the natural surroundings.
Light and shadow play a crucial role in the composition, constantly transforming the atmosphere. Geometric elements cast dynamic shadows, while glass reflections create an ongoing dialogue between interior and exterior spaces.
Ultimately, the house becomes a canvas that redefines everyday living, evolving with its inhabitants to offer continuity, tranquility, and timelessness.
Client: | Undisclosed |
Project Team: | |
Design Team: | Andreas Y. Kyriakou, Stella Makri |
Photos: | Creative Photo Room |
Consultants Engineers: | Lab γ - Advanced Structural Engineering, Costas Petrides, Kornilios Plouti, Nikolas Lambrou |
Type: | Residential |
Location: | Mandria, Pafos, Cyprus |
Date: | 2020-2024 |
Status: | Completed |
Services: | Conceptual Design |













