Villa 242
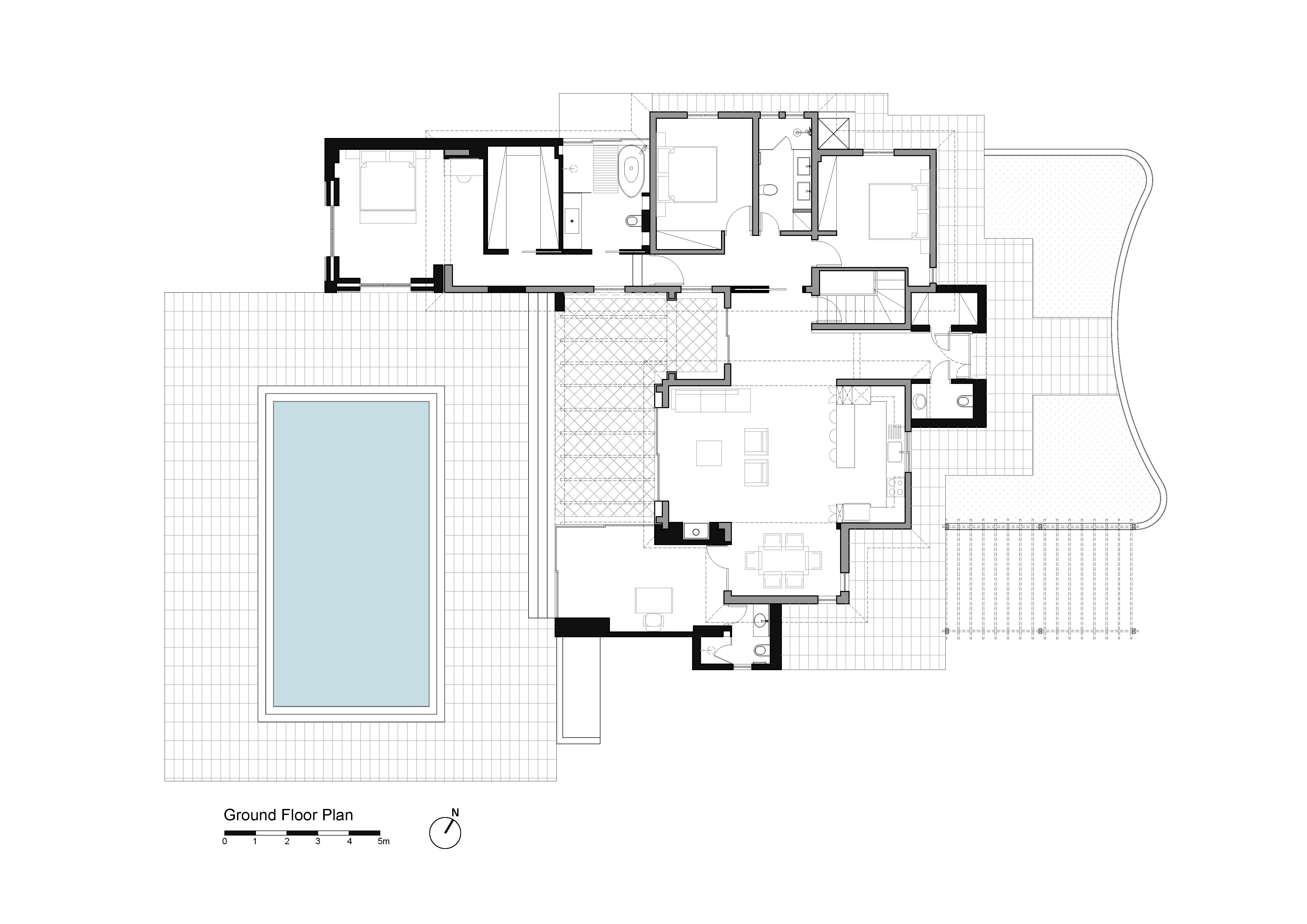
Located in Aphrodite Hills Resort, Villa 242 was an imitation of traditional architecture, characterized by unnecessary ornamentation. The challenge was to refresh it while preserving its original shell. The proposal removes superfluous elements, reshaping the interior layout for greater transparency, natural light, and open views, creating a bright and airy atmosphere. Large openings frame the southwest landscape, offering framed vistas toward the sunset and horizon.
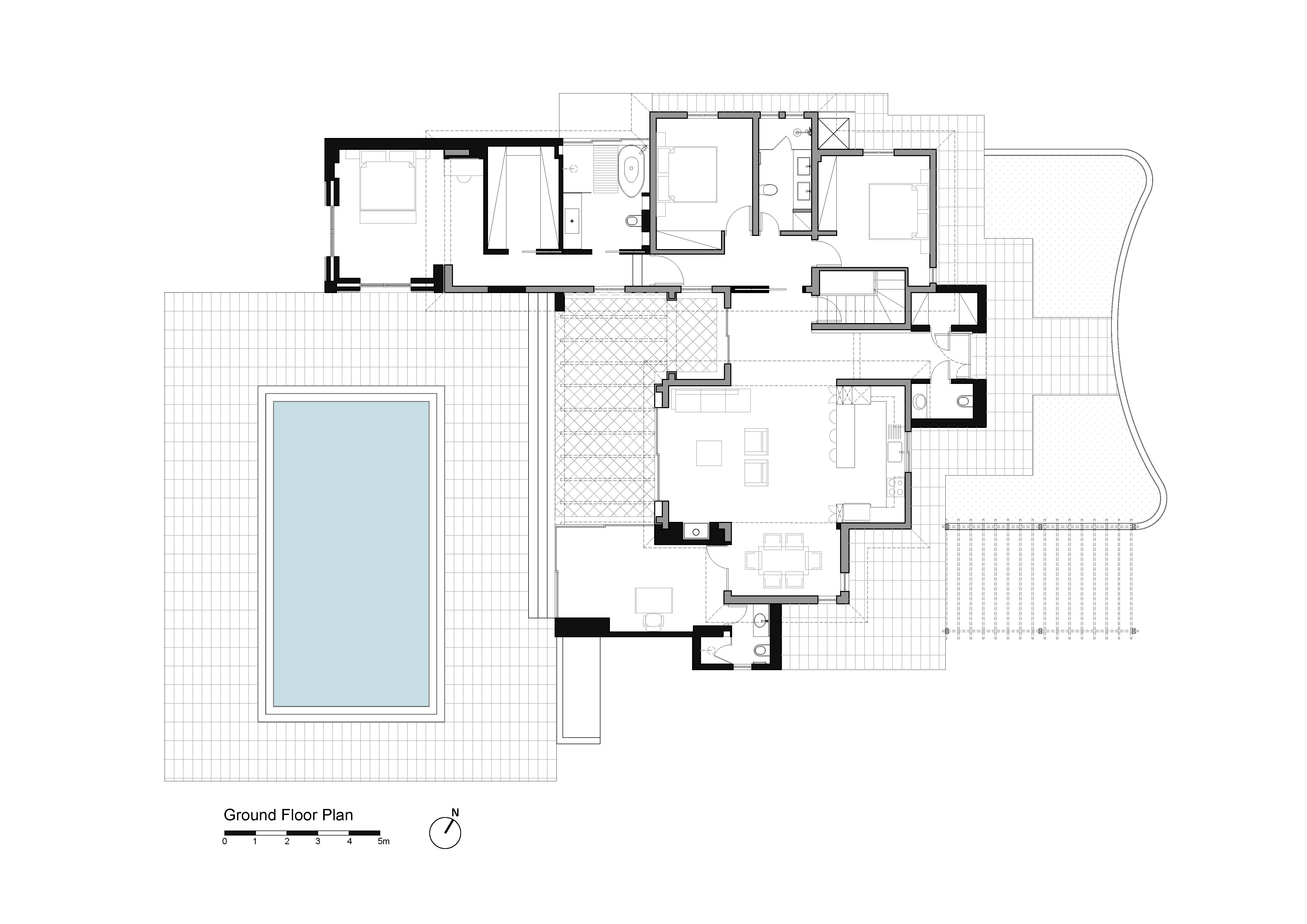
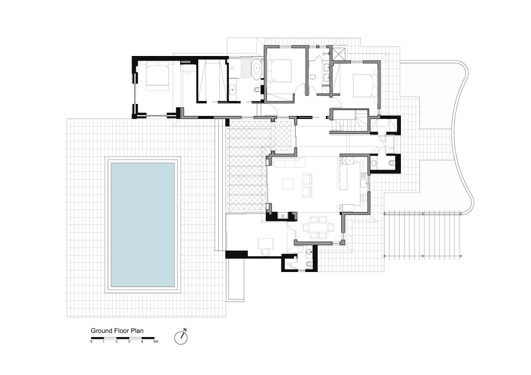
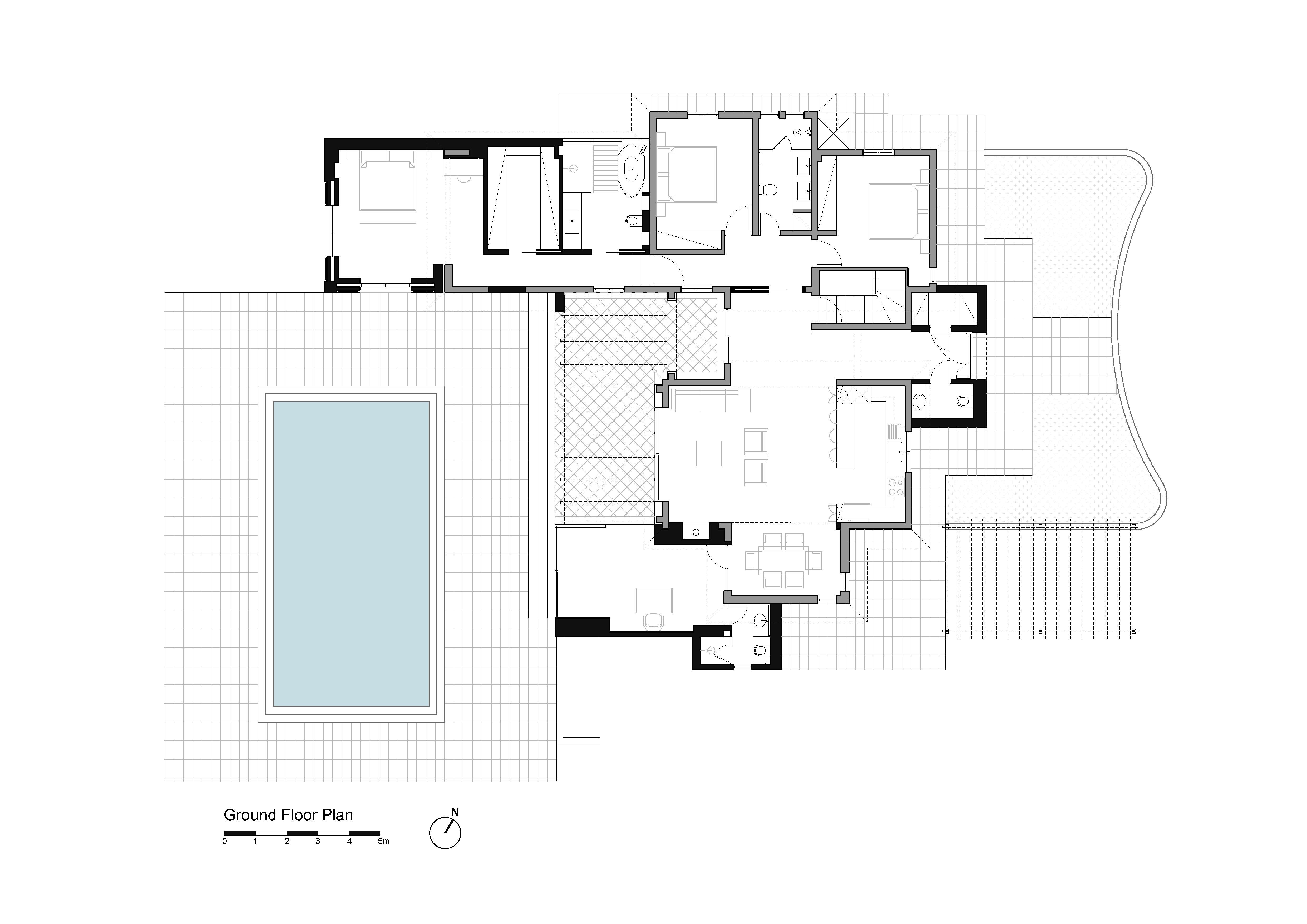
The villa’s extension is designed as a harmonious addition of volumes that retain their distinct identity. Three rectangular prisms are strategically arranged around the existing structure, incorporating the new bedroom to the west, the office with its en-suite bathroom to the south, and a redesigned entrance area to the northeast. Their clean geometry and flat roofs contrast with the original pitched roofs, creating a dynamic balance between old and new.
A raised, covered veranda on the southwest side reconnects the interior with nature, providing shade and cooling while framing the sunset, pool reflections, and lush greenery.
The material palette is natural and earthy. The front façade retains and restores the porphyry cobblestone flooring, emphasizing the car circulation area. The southwest façade preserves local Kivides stone, complemented by a reed-screened pergola that creates an evolving interplay of light and shadow. High-quality Italian ceramic flooring extends seamlessly between interior and exterior, reinforcing continuity and fluid movement.
The intervention breathes new life into Villa 242, blending contemporary simplicity with traditional essence, resulting in a refined, functional retreat.
Client: | Undisclosed |
Design Team: | Andreas Y. Kyriakou, Maria Papaonisiforou |
Photos: | Creative Photo Room |
Consultants Engineers: | Valentinos Fakontis, Costas Petrides, LEPT Consultants Engineers, Nikolas Lambrou |
Type: | Residential |
Built Area: | 285 sqm |
Location: | Aphrodite Hills, Paphos, Cyprus |
Date: | 2021 - 2024 |
Status: | Completed |
Services: | Conceptual Design |



















